AMPLIAMENTO CELLA FRIGO - POLO LOGISTICO COOP ALLEANZA 3.0
Anzola dell'Emilia (Bologna)

Il progetto riguarda la realizzazione dell’ampliamento della cella frigorifera destinata allo stoccaggio dei prodotti surgelati all’interno del polo logistico di Coop Alleanza 3.0 ad Anzola dell’Emilia (BO).

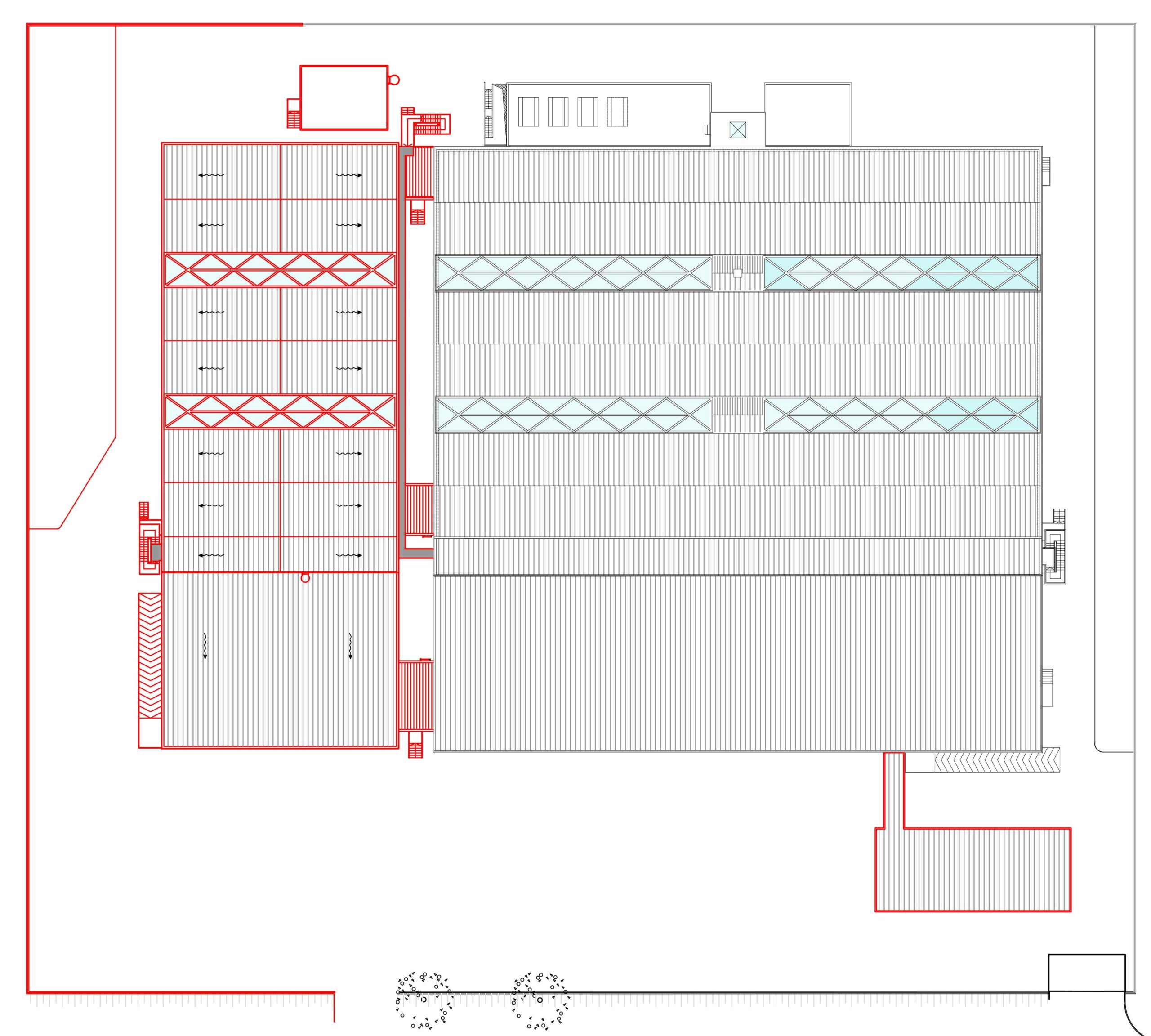
L’intervento prevede la costruzione di un nuovo edificio industriale, con caratteristiche edilizie e funzionali analoghe alla cella frigorifera esistente. Il nuovo volume si collega direttamente al fabbricato attuale e ospita le medesime attività di deposito merci surgelate, senza variazioni di destinazione d’uso.

 

 Dati generali

  • Superficie fondiaria complessiva: 166.779 mq

  • Superficie edificabile del lotto: 92.326 mq

  • Superficie utile ampliamento: 2.060 mq

 

L’ampliamento, costituito da un nuovo corpo di fabbrica posto sul fianco ovest della cella esistente, occupa un’area di circa 29 x 75 metri, così suddivisa:

  • Anticella
    Area destinata alla preparazione delle spedizioni e alla ricezione della merce da stoccare, che garantisce una temperatura costante di 0°C, grazie a chiusure perimetrali in pannelli altamente isolanti.

  • Cella frigorifera
    Occupa la parte principale dell’ampliamento, con una superficie scaffalata di circa 1.400 mq e un’altezza utile interna di 10,80 m; la temperatura operativa è di -20°C, mantenuta grazie a un sistema di isolamento ad alte prestazioni.

Il collegamento tra la nuova cella e quella esistente avviene tramite tre passaggi interni, anch’essi mantenuti a 0°C.
Dal punto di vista strutturale, le due celle sono sismicamente indipendenti.

 

Impianto frigorifero

Il nuovo sistema di refrigerazione utilizza una tecnologia a doppio circuito:

  • un compressore ad ammoniaca (NH₃) per la produzione del freddo;

  • un circuito secondario ad anidride carbonica (CO₂) per il trasporto e la distribuzione della refrigerazione all’interno del magazzino.

Questa soluzione garantisce maggiore efficienza energetica e riduzione dei consumi, poiché all’interno del magazzino circola solo CO₂.
Il nuovo compressore ad ammoniaca è installato nel locale tecnico esistente, già dotato di due unità analoghe; l’intero impianto rispetta la Direttiva Macchine 2006/42/CE ed è conforme alle prescrizioni della Commissione Gas Tossici.

 

Caratteristiche costruttive

Il rivestimento esterno è realizzato in lamiere grecate, in continuità estetica con il fabbricato esistente.
La copertura piana è dotata di pacchetto isolante e manto impermeabilizzante in TPO, a garanzia di massima efficienza energetica e durabilità.

Le baie di carico sono collocate sul fronte sud, mentre sul lato nord è stato realizzato un locale tecnico per l’alloggiamento dei compressori ad anidride carbonica (CO₂).

Committente: Coop Alleanza 3.0 

Inizio progettazione: 2022

Superficie complessiva intervento: 2.500 mq