PARCO COMMERCIALE NAVILE
Bologna

Intervento
  • il complesso, edificato nell’immediata periferia nord di Bologna, è destinato al commercio al dettaglio in medie e grandi superfici di vendita
  • Per garantire che l’opera, pur nelle sue ampie dimensioni, si integrasse armoniosamente nel contesto urbano, sono state studiate forme e finiture esterne capaci di creare continuità visiva e spaziale con gli edifici circostanti
  • l’uso di griglie, pannelli in lamiera grecata, lamiere di alluminio e strutture in cemento armato a vista conferisce coerenza estetica e solidità all’insieme.
 
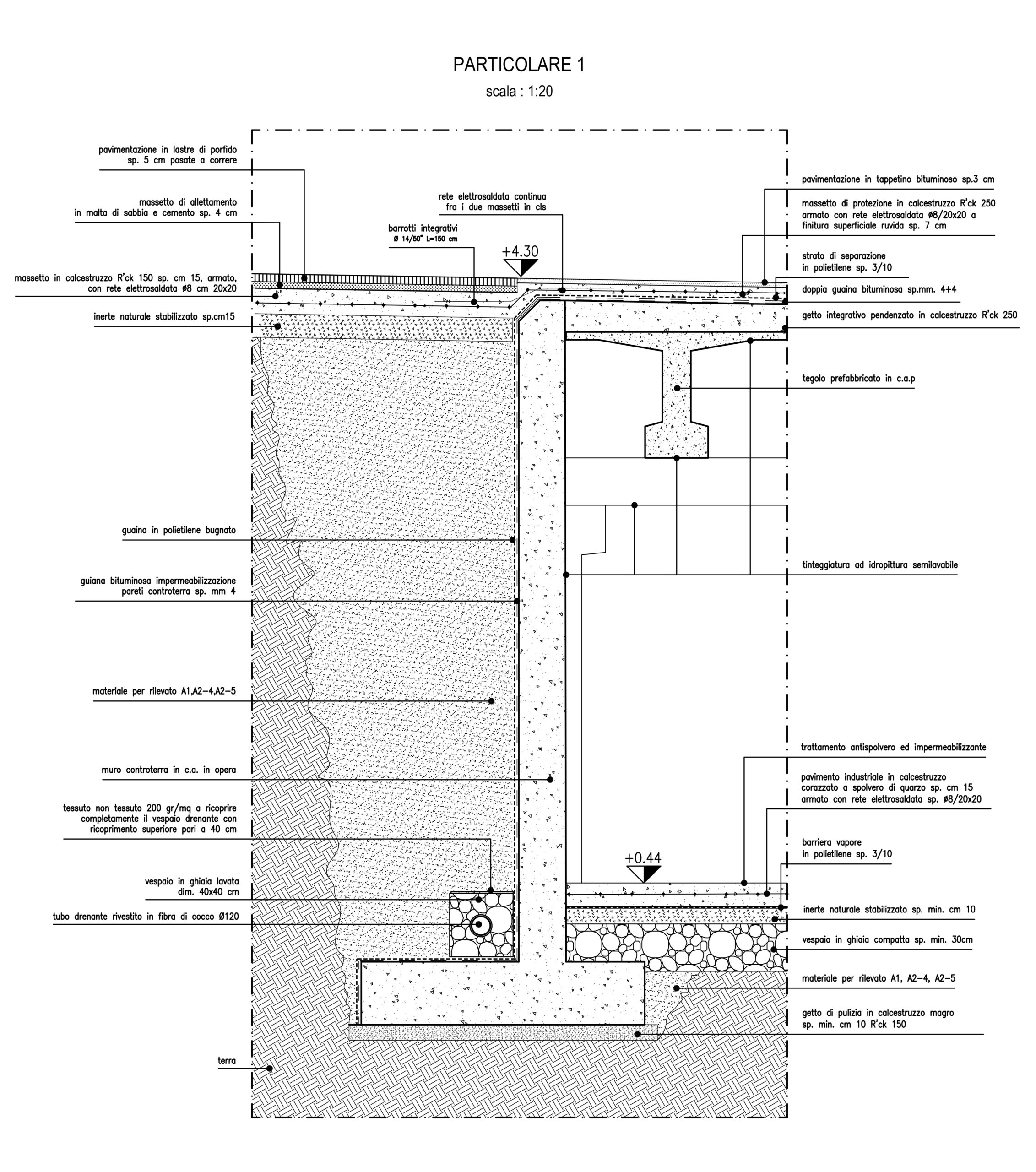
Parcheggio
  • il piano terra di 34.000 mq e il piano interrato di 9.150 mq ospitano complessivamente 1.317 posti auto
  • progettato per garantire un collegamento ottimale con la viabilità esistente, si raccorda con la viabilità esterna attraverso una rotatoria ovale 

  • è integrato con la rete ciclopedonale cittadina tramite sottopassi interrati che attraversano la viabilità principale sul lato ovest di via Cristoforo Colombo.

 
Verde pubblico
  • All’interno dell’area di intervento sono previste zone destinate a verde pubblico, concentrate principalmente sul lato nord del lotto, dove svolgono sia una “corridoio ecologico” che di barriera antirumore rispetto alla viabilità autostradale.
  • Dove possibile, i parcheggi sono alberati e dotati di un sistema di ombreggiamento, migliorando il comfort urbano e riducendo l’effetto isola di calore.

  • Per favorire la mobilità della fauna locale e favorire il passaggio tra l’area oggetto di intervento e il canale Navile sono stati previsti appositi manufatti artificiali, come sottopassi, che consentono attraversamenti sicuri e favoriscono la continuità ecologica dell’area.

Committente: Marc Seven S.r.l.
Inizio progettazione: 2001
Fine lavori: 2003
Superficie complessiva: mq 95.000