OPERE DI URBANIZZAZIONE DEL COMPARTO SBIFFIA
Castello di Serravale (Bologna)

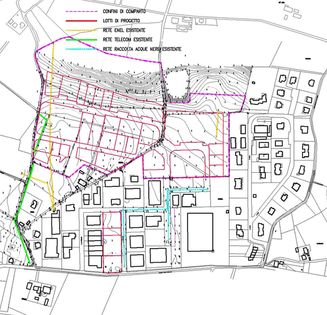
L’intervento in oggetto è costituito dalle opere di urbanizzazione primaria previste dal Piano Particolareggiato di iniziativa pubblica del comparto urbanistico “Sbiffia”, sito nel  comune di Castello di Serravalle.

 

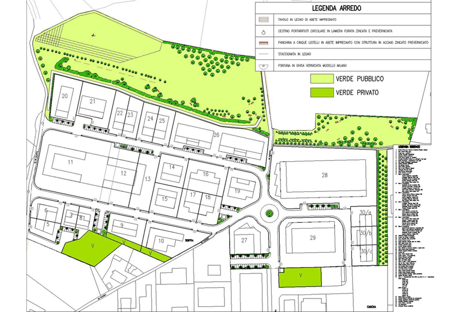
La superficie destinata a verde pubblico richiesta al comparto “Sbiffia” per il soddisfacimento delle dotazioni urbanistiche assomma a 36000 mq, suddivisi tra verde di arredo stradale e superficie a parco; quest’ultima concentrata tutta a sud ovest dell’area, portando alla formazione di una continuità verde.

 

Le superfici destinate a parcheggio sono state alberate al fine di offrire un’adeguata ombreggiatura ai posti auto .

 

Il progetto delle opere di urbanizzazione primaria è comprensivo di:

  • viabilità
  • segnaletica stradale
  • rete di distribuzione dell’energia elettrica
  • rete di distribuzione del gas metano
  • rete di distribuzione dell’acqua potabile
  • rete telefonica
  • rete di illuminazione pubblica
  • rete di smaltimento delle acque meteoriche
  • rete di smaltimento delle acque reflue
  • aree di raccolta R.S.U. e raccolte differenziate
  • progetto ambientale

Committente: Consorzio Sbiffia
Inizio progettazione: 2005
Fine lavori: 2010
Superficie complessiva: 123.500 mq