REALIZZAZIONE DELLA NUOVA "SCUOLA NEL BOSCO"
Villa Aldini (Bologna)

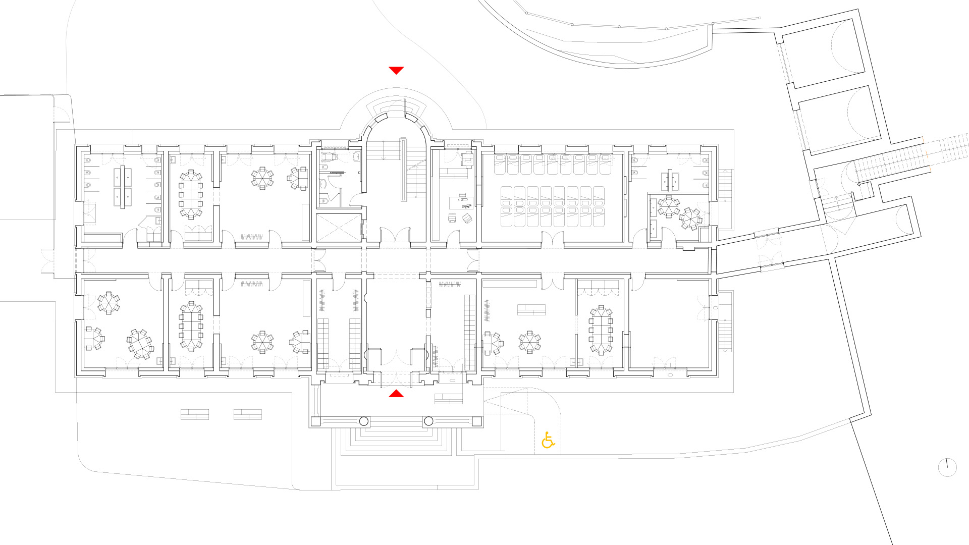
L’intervento di riqualificazione dell’Ex Casa del Mutilato, all’interno del complesso di Villa Aldini, si pone come obiettivo quello di restituire una pubblica funzione alla cittadinanza ed ai visitatori, trasformando il complesso in un polo culturale ed educativo a stretto contatto con la natura.

 

Ai primi due livelli dell’edificio si svilupperà una scuola dell’infanzia denominata Scuola nel Bosco.

 

Al primo piano dell’edificio sarà posto un centro di Educazione in Natura (Outdoor Education); i locali di tale centro, oltre che a servizio della Scuola nel Bosco, saranno a disposizione di istituti esterni.  

Ai piani sottostanti saranno collocati locali destinati ad attività laboratoriali in diretta relazione con gli spazi esterni, incentrandosi sull’educazione in natura.

 

Per poter esprimere al meglio le sue funzioni e potenzialità a servizio della scuola nel bosco, l’intera area di pertinenza scolastica sarà oggetto di interventi di diversa natura che risolveranno le esigenze legate agli aspetti funzionali e alla messa in sicurezza degli spazi, arricchendo il giardino per  favorire i principi propri di una scuola nel bosco. 

Committente: Comune di Bologna

Inizio progettazione: 2023

Superficie complessiva edificio: 2000 mq

Superficie area esterna: 1280 mq